Kingfisher
Worcestershire, 2025
Bespoke Residential
Client
Private Client
Architect
Lidia Banuls
Contractor
Coates Group
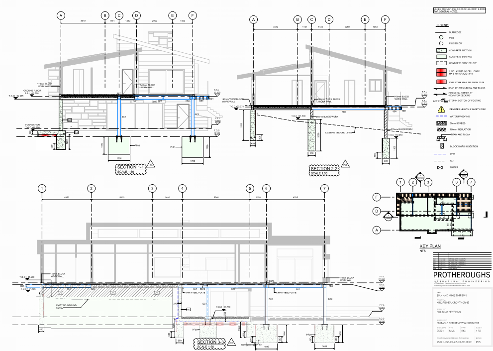
Protheroughs were brought in post-planning to provide structural engineering services for an ambitious self-build home on the banks of the River Avon. The architecture consisted of a cantilevered balcony on a sloped site overlooking the banks of the river. A concrete retaining wall created the undercroft and lower ground floor structure. As the building projected from the bank the structure became a cantilevered steel frame, supported on pad foundations.
Close collaboration with the contractor and geotechnical engineer allowed for a traditional foundation solution following a slope stability analysis and riverbank stabilisation.
"James is fantastic, what a pleasure to work with!"




