Burns Close
Worcestershire, 2025
Multi-Home Development
Client
Mr Jason Hill
Architect
Stephen Protherough Architecture
Contractor
Newmans
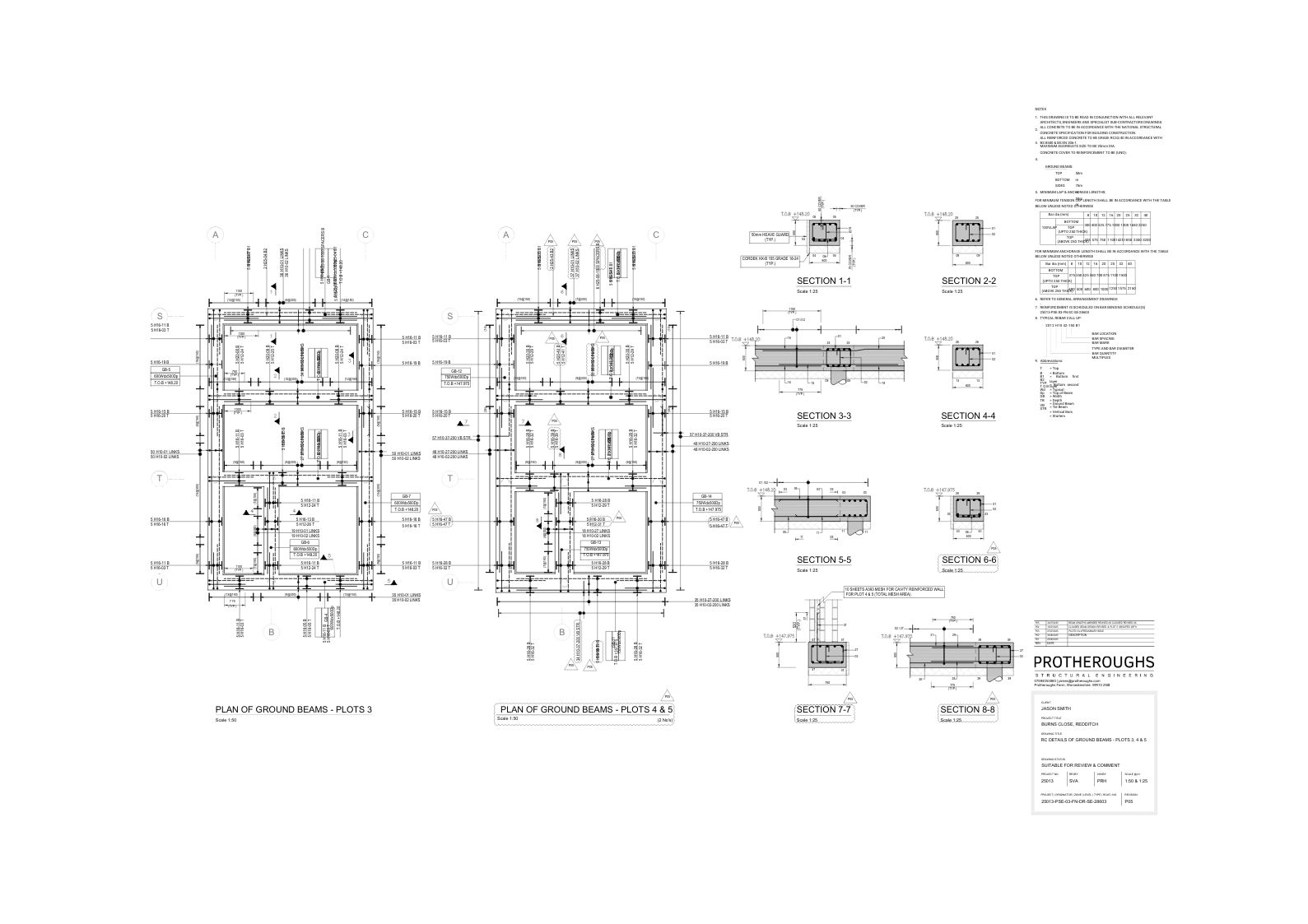
Protheroughs was employed to provide structural engineering services for a challenging development of 6 new build houses, within a cul-de-sac in Redditch.
Working closely with the design team, contractor and geotechnical engineer a piled ground solution was preferred to avoid undermining existing neighbouring properties and keep concrete use and muck to a minimum.
"James is fantastic, what a pleasure to work with!"



